ERDOL 124 mit einer Nettogrundfläche 222 m² ist ein perfektes Haus für Menschen, die sich ihr Leben in einem einfachen und modernen Wohnraum vorstellen. Seine minimalistische Form spiegelt perfekt die aktuellen Bautrends wider. Darüber hinaus verfügt das Haus über alle Vorteile unserer anderen Projekte: Es ist kostengünstig im Unterhalt und äußerst komfortabel in der Nutzung und bietet seinen Bewohnern einen angenehmen Lebensraum. Die beim Bau verwendeten ökologischen Materialien und neusten Technologien ermöglichen große Energieeinsparungen, so dass das Haus im Einklang mit der Natur harmoniert.
ERDOL 124 in der gewählten Konfiguration hat ein modernes Satteldach mit einem nutzbaren Dachboden mit einem Neigungswinkel von 38 Grad und ist mit EUROCOLOR SYNEGO PVC-Tischlerarbeiten auf einem 80 mm breiten Profil der Marke REHAU in den Farben Anthrazit ausgestattet.
ERDOL 124
(671 € pro m²)
- Projektplanung, Hauspläne
- Vorgefertigte Außenwände mit vorbereiteten Steckdosen für die Elektroinstallation, Polystyrol-Isolierung
- Vorgefertigte Innenwände im Erdgeschoss mit vorbereiteten Schächten für die Elektroinstallation
- Vollständige Dachkonstruktion, Zwischendecke ohne Dämmstoff
- Dacheindeckung - BRAAS-Betondachziegel je nach gewählter Konfiguration
- Galeco-Vierkant-Dachrinnen
- Montage von vorgefertigten Wand- und Dachelementen
- 3-fach verglaste Fensterelemente inkl. Montage, Farbgebung anthrazit beidseitig
- Eingangstüren einschließlich Einbau
- Dacheindeckungen mit Dachrinnen und Fallrohre
- Positionierung des Hauses auf dem Grundstück
- Koordination Ihrer Baugenehmigung mit Partner-Architekten
- Übernahme der Bauleiterfunktion, Führung von einem Bautagebuch, etc.
- Vorbereitung der Fundamentplatte in Übereinstimmung mit dem Projekt und den Richtlinien des Bauunternehmens
- Elektrische Installation
- Klempnerarbeiten
- Zentrale Lüftungssystem (namhafte EU-Hersteller)
- Estrich
- Wärmepumpe als Heizungsanlage (namhafte EU-Hersteller)
- Schließen/Dämmen der Decke
- Dämmen der Zwischendecke
- Ausbau und Gestaltung des Dachbodens, d. h. Errichtung der Dachbodenbelüftung, des Fußbodens, der Trennwände, der Decken und der Dachschrägen, Installation der Elektro- und Sanitäranlagen
- Verputzen, Spachteln und Schleifen von Wänden und Decken
- Kauf und Einbau einer Treppe
- Fertigstellung - Anstrich der Wände, weiße Farbe
- Endgültiges Rendering der Fassade
- Äußere Verbindungen
- Gebäudeerdung (falls erforderlich)
Den Kunden, die sich für den Kauf von ERDOL HAUS entscheiden, wird auch Hilfe bei der Vorbereitung der Fundamentplatte angeboten. Dies ist ein sehr wichtiger Teil der Konstruktion, da es sich um das Fundament handelt, auf dem das gesamte Gebäude errichtet wird, weshalb auf eine ordnungsgemäße Ausführung geachtet werden sollte. Die Platte ist eine Alternative zu den traditionellen Fundamenten. Ihre Hauptvorteile sind definitiv die kürzere Ausführungszeit und die Wärmedämmung. Durch die Verwendung der Fundamentplatte beschleunigen sich auch die nachfolgenden Bauphasen - so wird es möglich, die Bauzeit um einige Wochen zu verkürzen.
- Bereitstellung der erforderlichen Unterlagen für einen Bauvertrag, d.h. Erschließungsbedingungen (WZ) oder örtlicher Entwicklungsplan (LEP).
- Unterschreiben Sie den Vertrag und erhalten Sie bis zu 7 Monate Preisgarantie für den Hausbau.
- Zahlen Sie die Kaution gemäß dem Vertrag.
- Erhalt der Entwurfsunterlagen (wir stellen Ihnen alle erforderlichen Entwürfe bis zu 45 Tage nach Vertragsabschluss und Zahlung der Anzahlung zur Verfügung).
- Führen Sie eine Anpassung durch, d.h. lassen Sie den Entwurf des Hauses von einem entsprechend qualifizierten Fachmann auf das Grundstück übertragen.
- Beantragen Sie eine Baugenehmigung oder erklären Sie den Bau im Falle eines "Hauses auf Antrag".
- Schicken Sie uns eine Kopie der Baugenehmigung oder der Bauanzeige und teilen Sie uns mit, dass Sie bereit sind, mit den Arbeiten zu beginnen.
- Bestätigen Sie Ihre finanzielle Bereitschaft zum Baubeginn.
* Sobald die oben genannten Punkte erfüllt sind, wird ein Zeitplan für den Bau festgelegt.
- Fundamentplatte – Zahlung für die Fertigstellung, sobald sie für fertig erklärt wird.
* Die Fertigstellung wird mindestens 3-4 Wochen vor der Installation des Gebäudes erfolgen.
- Montage der Konstruktion in einem geschlossenen Zustand. Machen Sie die Zahlung und bis zu 10 Tage nach Abschluss der Arbeiten an der Fundamentplatte.
* Es wird uns etwa 3-7 Tage dauern, um das.
- Interne Installationen: Elektrik, Sanitäranlagen, Heizung, mechanische Lüftung (Rekuperation).
- Bauträgerzustand und Trockenbau.
* Der detaillierte Zeitplan für die Fertigstellung des Hauses muss je nach dem endgültigen Umfang der Arbeiten noch individuell vereinbart werden.
- Übergabe der As-Built-Dokumentation.
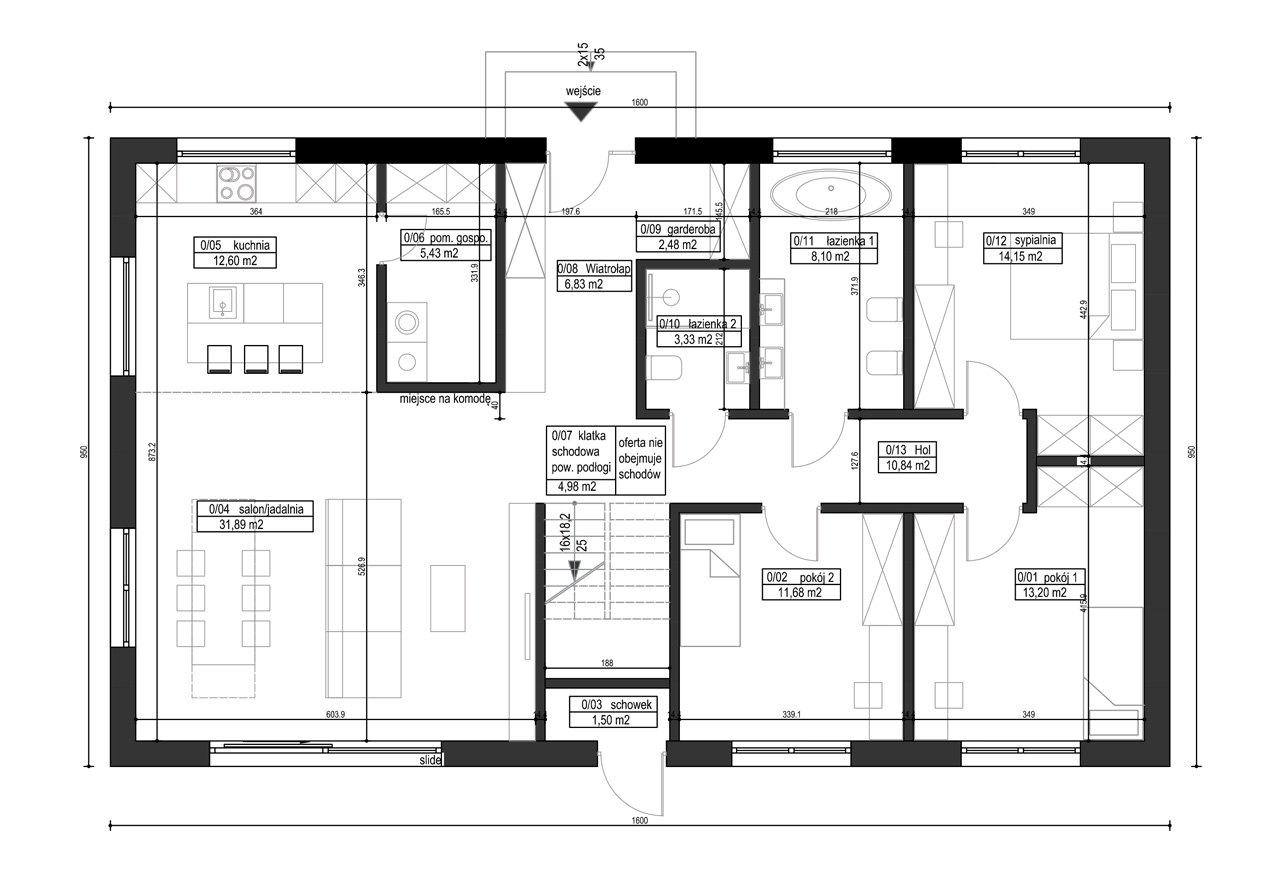
Damit Sie sich das Projekt ERDOL HAUS genauer ansehen können, haben wir uns entschlossen, sein Aussehen zu visualisieren und haben für Sie einen virtuellen Rundgang vorbereitet, dank dessen Sie den Grundriss des Hauses und die Anordnung der einzelnen Räume kennenlernen können. Wir hoffen, dass diese Visualisierung unserer Designer für Sie eine hilfreiche Inspiration in der Phase der Fertigstellung des Gebäudes sein wird und Sie sich vorstellen können, wie schön das Leben in Ihrem eigenen Haus sein kann.
